Cases de sucesso

Veja nossos casos de sucesso

Home / Casos de sucesso

Nossos Projetos

Hospital Geral de Bengo – Eficiência e Modernização na Gestão Hospitalar

A Ango Solution foi responsável por um projeto de modernização no Hospital Geral de Bengo, garantindo mais eficiência e qualidade na gestão hospitalar. A intervenção incluiu a instalação de câmaras frigoríficas de alta capacidade para a conservação segura de insumos e alimentos, além da implementação de uma cozinha industrial completa, equipada com zona de preparação, cocção e copa suja. Também realizámos a instalação de uma lavandaria industrial com calandra, máquinas de lavar roupa com barreira sanitária e secadoras, assegurando um processo higiénico e eficiente.

Com esta infraestrutura modernizada, o hospital passou a contar com instalações otimizadas para a sua operação diária, melhorando a qualidade dos serviços prestados e garantindo mais segurança para pacientes e profissionais de saúde.

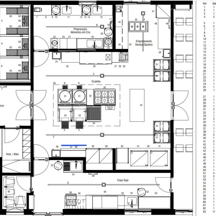
Nossos Projetos

Hospital Geral do Cuanza Sul – Infraestrutura Hospitalar de Alto Desempenho

No Hospital Geral do Cuanza Sul, a Ango Solution entregou um projeto completo para melhorar a eficiência operacional e garantir a segurança alimentar e hospitalar. Instalámos câmaras frigoríficas de última geração, essenciais para a conservação adequada de medicamentos e alimentos. A cozinha industrial foi equipada com tecnologia de ponta, permitindo a preparação eficiente das refeições. Além disso, implementámos uma lavandaria industrial equipada com calandra, máquinas de lavar roupa com barreira sanitária e secadoras, assegurando altos padrões de higiene.

Com esta modernização, o hospital passou a dispor de uma estrutura mais eficiente e adaptada às exigências do setor da saúde, proporcionando um ambiente seguro e organizado para pacientes e profissionais.

Com esta infraestrutura modernizada, o hospital passou a contar com instalações otimizadas para a sua operação diária, melhorando a qualidade dos serviços prestados e garantindo mais segurança para pacientes e profissionais de saúde.

Nossos Projetos

Hospital Geral do Cuanza Norte – Tecnologia e Segurança para o Setor da Saúde

A Ango Solution modernizou as infraestruturas do Hospital Geral do Cuanza Norte, implementando soluções que aumentam a eficiência hospitalar e a segurança dos processos internos. O projeto incluiu a instalação de câmaras frigoríficas para armazenamento seguro de insumos, além da montagem de uma cozinha industrial completa e otimizada para a alta demanda do hospital. A lavandaria industrial foi equipada com calandra, máquinas de lavar com barreira sanitária e secadoras, garantindo processos de higienização mais rápidos e eficazes.

Com estas melhorias, o hospital ganhou uma estrutura moderna, preparada para oferecer serviços de qualidade, reforçando o compromisso da Ango Solution com a inovação e a excelência no setor hospitalar.

Com esta infraestrutura modernizada, o hospital passou a contar com instalações otimizadas para a sua operação diária, melhorando a qualidade dos serviços prestados e garantindo mais segurança para pacientes e profissionais de saúde.

Nossos Projetos

Padaria Poupa Mais – Produção Otimizada e Alta Performance

A Ango Solution transformou a infraestrutura da Padaria Poupa Mais, garantindo mais eficiência e qualidade na produção. O projeto contemplou a instalação elétrica da cozinha industrial e a implementação de equipamentos de alto desempenho, como fornos convectores, batedeiras, amassadeiras, fogões e salamandras. Também realizámos a instalação de bancadas industriais em inox e de um sistema de exaustão eficiente, garantindo um ambiente seguro e adequado para a produção em larga escala.

Com esta modernização, a padaria ganhou mais capacidade produtiva, segurança e qualidade nos seus processos, consolidando-se como uma referência no setor.



Nossos Projetos

AYO Club – Cozinha Industrial de Alto Padrão

Para o AYO Club, a Ango Solution projetou e executou a instalação elétrica da cozinha industrial, assegurando eficiência energética e máxima segurança operacional. O espaço foi equipado com fornos convectores, batedeiras, amassadeiras, fogões, salamandras e outros equipamentos essenciais para um serviço gastronómico de excelência. Além disso, instalámos bancadas industriais em inox, proporcionando um ambiente de trabalho durável, higiénico e funcional.

Com esta infraestrutura moderna, o AYO Club elevou a qualidade dos seus serviços, garantindo um ambiente de cozinha altamente eficiente e preparado para atender grandes volumes com excelência.

Seja o Próximo Caso de Sucesso!

Empresas de referência já confiam na Ango Solution para alcançar resultados extraordinários. Agora é a sua vez!

Agende uma consultoria gratuita e descubra como podemos impulsionar o seu negócio com soluções inovadoras e eficientes.

Artigos & Novidades

Blog: Conhecimento e Inovação

Acompanhe o nosso blog e fique a par das novidades:

×